A Luxury Brooklyn Penthouse Returns to the Market
Los Angeles Lakers head coach and former NBA sharpshooter JJ Redick has officially relisted his meticulously renovated Brooklyn penthouse for $6.2 million. Located in the heart of Dumbo, the 3,000-square-foot duplex sits atop a seven-story warehouse converted by ODA and offers a rare combination of architectural character and indoor–outdoor living.


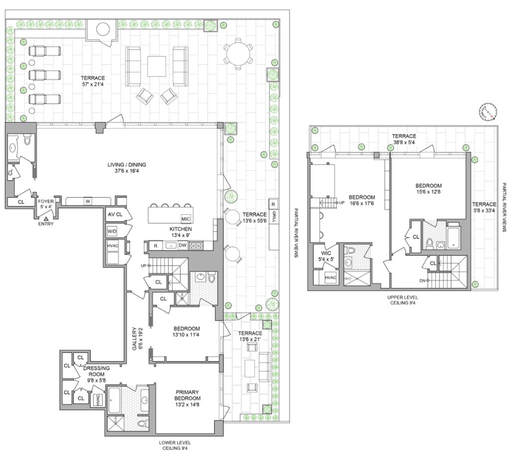
Originally purchased in 2017, the four-bedroom, four-and-a-half-bath residence features a spectacular 2,500 square feet of wraparound landscaped terraces, a standout amenity that Redick has often described as a key factor in choosing the home.

European-Inspired Interiors by Michael Aiduss
What began as a pied-à-terre evolved into a full-time residence after a top-to-bottom renovation by designer Michael Aiduss, featured in Architectural Digest. Redick and his wife, Chelsea Kilgore, leaned into a refined, European-inspired aesthetic—elevating the industrial loft into a classical, richly detailed living environment.

Inside, the main floor showcases white oak herringbone floors, brass accents, glass-trim pocket doors, French moldings, and elegantly curved archways. A bright formal entry opens to an expansive living and dining space with an alcove lounge and custom bar.

A Statement Kitchen in Aegean Blue
One of the home’s most striking features is the fully lacquered Aegean blue kitchen, finished with bronze hardware and Calacatta marble countertops. The space extends seamlessly to a cozy family room with a hidden “James Bond-style” TV that disappears into the cabinetry at the touch of a button.

Luxurious Private Level With Sky-Facing Bedrooms
The upper level is devoted to the primary suite, wrapped in Venetian plaster and connected to a mirrored dressing room. Two secondary bedrooms open directly onto an upper terrace with sunset views, while a fourth en-suite bedroom offers flexibility for guests or a private office.

Designed with Gunn Landscape Architecture, the penthouse’s outdoor areas provide distinct zones for lounging, dining, and entertaining—complete with a full outdoor kitchen. As Redick famously told AD: “For me it came down to outdoor space. I wanted a real patio, not a Juliet balcony.”

Amenity-Rich Living in a Prime Dumbo Location
Residents of the boutique 75-unit building enjoy upscale amenities, including a double-height lobby, 24-hour concierge, fitness and yoga studios, a resident lounge, a landscaped courtyard, and a rooftop terrace.

Redick first listed the home for $8.5 million in 2021, later adjusting the price to $7 million in 2022. The penthouse is now asking $6.2 million, represented by Rachel Greenstein of Compass.


A Star’s Home With a Designer Edge
Now 41, JJ Redick built a celebrated 15-season NBA career as one of the league’s most accurate three-point shooters before transitioning to broadcasting and ultimately becoming the Lakers’ head coach in 2024. His stylish Dumbo penthouse reflects the next chapter of his life—combining sophisticated design, family-friendly space, and the rare luxury of massive private terraces in one of Brooklyn’s most coveted neighborhoods.